
Souligné-Flacé. «Viabilisation et vente de terrains en 2022»
Luc Bourmault, maire de Souligné, se veut confiant sur un projet qui lui tient à cœur depuis quelques années, celui du lotissement « Les Hauts de...

Souligné-Flacé. «Viabilisation et vente de terrains en 2022»
Luc Bourmault, maire de Souligné, se veut confiant sur un projet qui lui tient à cœur depuis quelques années, celui du lotissement « Les Hauts de...
Chaque matin, recevez toute l’information de Souligné-Flacé

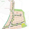
Souligné-Flacé. Vendre les lots du lotissement des Hauts de Vincennes
En 2021, la commune a fait aboutir le lotissement des Hauts de Vincennes. « Nous avons une réunion de préparation de chantier de lotissement le...

Val de Sarthe. Covid-19 : quatre nouvelles dates d’ouverture au centre de vaccination
Le centre de vaccination Covid du Val de Sarthe, situé à La Suze-sur-Sarthe, sera ouvert les mardi 1er, mercredi 2, mardi 8 et mercredi 9 février...

Souligné-Flacé. Des travaux pour reloger une famille qui a tout perdu dans un incendie
À l’ordre du jour du conseil municipal du lundi 17 janvier 2022, des travaux avant la mise en location d’une maison appartenant à la...

À Souligné-Flacé, bientôt une nouvelle maison pour la famille qui a tout perdu dans un incendie
Une maison appartenant à la commune de Souligné-Flacé sera louée à la famille victime d’un incendie courant novembre 2021. Des travaux...

Val de Sarthe. Paiement des factures : la CDC donne des précisions
Après la fermeture de la trésorerie de La Suze-sur-Sarthe, la communauté de communes du Val de Sarthe fournit des précisions aux usagers concernant...

Val de Sarthe. Un minibus pour la jeunesse
Le service jeunesse de la communauté de communes se dote d’un minibus, cofinancé avec Groupama. Objectif : davantage d’autonomie. La convention...

Val de Sarthe. Un contrat « facilitateur » pour le territoire
Jeudi 9 décembre 2021, la communauté de communes du Val de Sarthe a signé avec l’État un contrat de relance et transition écologique reprenant...

Souligné-Flacé. Lotissement : travaux et tarifs adoptés
Lotissement communalAprès l’appel d’offres, le conseil, réuni le 6 décembre, a choisi les entreprises qui réaliseront les...

Souligné-Flacé. Échos du conseil municipal
Projet d’aménagement de jeux pour enfants« Nous avions lancé un sondage pour connaître les besoins et les souhaits des habitants et des...

Souligné-Flacé. Le projet de lotissement avance : les travaux débuteront en 2022
Le dossier du lotissement était à l’ordre du jour du conseil municipal du lundi 6 décembre 2021 à Souligné.

Sarthe. Un appel aux dons pour aider une famille, qui a tout perdu dans un incendie
Mardi 23 novembre 2021, à Souligné-Flacé, à l’ouest du Mans (Sarthe), un incendie a ravagé une habitation. Pour aider la famille qui a tout...

Val de Sarthe. Le projet de territoire cousu d’écologie
Les grands axes du futur projet de territoire ont été adoptés lors du dernier conseil communautaire. Et, comme un symbole, l’opération...

Souligné. Une visite pour tout savoir sur l’eau potable
Fin octobre 2021, les élus du Syndicat mixte d’alimentation en eau potable de Brains-sur-Gée - Souligné-Flacé ont visité la station de Meruau et...

Souligné-Flacé. Damien Gautelier devient troisième adjoint au maire
Lors de la dernière séance du conseil municipal, l’ordre du jour a essentiellement porté sur le remplacement de Sonia Trémoureux, première...